Wohnung für 1 Person in Groitzsch
Ab 01.06.2026 werden zwei Wohnungen im BELLA Wohnpalais frei
Die Wohnung befindet sich im 1. OG und und hat 35m². Es ist eine kleine 2-Raum Wohnung mit separatem Schlafraum, einem Bad mit ebenerdiger Dusche und mit einer kleinen Single Küche. Die Wohnung verfügt über einen geräumigen Balkon welcher Richtung Osten zeigt.
- Kaltmiete: 340,00 €
- Betriebskostenvorauszahlung: 80,00 €
- Gesamtmiete: 420,00 €
Die Kaution beträgt 3 Kaltmieten.
Die zweite Wohnung befindet sich im 4. OG und und hat 45m². Es ist eine 2-Raum Wohnung mit separatem Schlafraum, einem Bad mit ebenerdiger Dusche und mit einer voll ausgestatteten Küche. Die Wohnung verfügt über einen geräumigen Balkon welcher Richtung Osten zeigt.
- Kaltmiete: 430,00 €
- Betriebskostenvorauszahlung: 80,00 €
- Gesamtmiete: 510,00 €
Die Kaution beträgt 3 Kaltmieten.
Hinzu kommt noch der Serivevertrag mit unserem Pflegedienst in Höhe von 75,00 € für 1 Person/ Monat.
Nehmen Sie gern mit uns Kontakt auf um einen Besichtigungstermin zu vereinbaren.
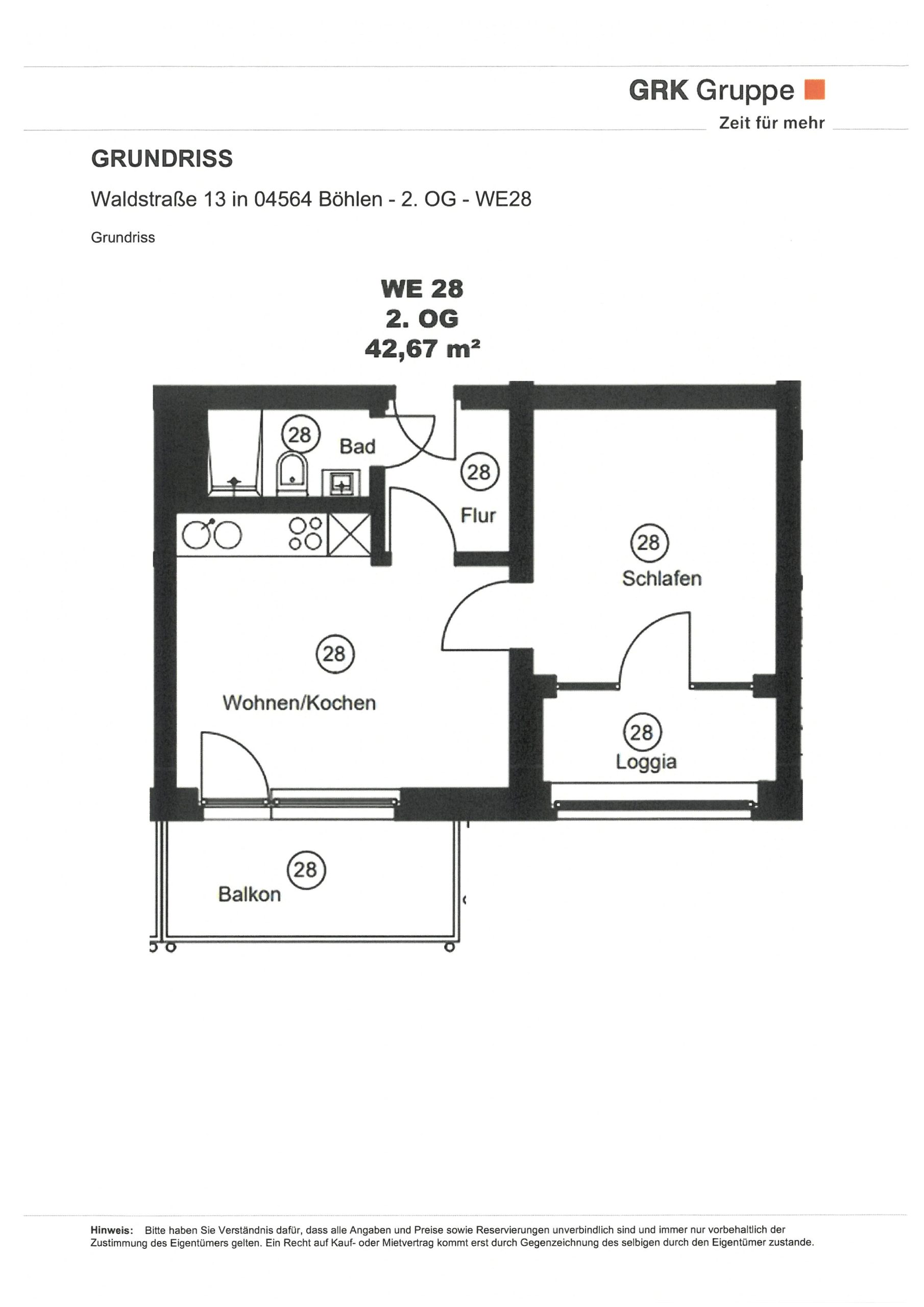
2-Raum Wohnung in Böhlen frei
Ab sofort haben wir eine 2-Raum Wohnung im Böhlen frei. Die Wohnung befindet sich im Haus 13 im 2. OG und hat ein Größe von 42,67 m². Daten zur Miete und Kaution, entnehmen Sie bitte dem unten stehenden Exposé. Gern können Sie mit der GRK Kontakt aufnehmen und einen Besichtigungstermin vereinbaren.
Grundriss Exposé
Hinzu kommt noch der Serivevertrag mit unserem Pflegedienst in Höhe von 75,00 € für 1 Person bzw. 118,00 €/ Monat für 2 Personen.
1-Raum Wohnung in Böhlen frei
Wir haben eine 1-Raum Wohnung im Böhlen frei. Die Wohnung befindet sich im Haus 1 im 1. Obergeschoss und hat ein Größe von 25,73 m². Daten zur Miete und Kaution, entnehmen Sie bitte dem unten stehenden Exposé. Gern können Sie mit der GRK Kontakt aufnehmen und einen Besichtigungstermin vereinbaren.
Grundriss Exposé
Hinzu kommt noch der Serivevertrag mit unserem Pflegedienst in Höhe von 75,00 €/ Monat für 1 Person.
BELLA Wohnpalais

BELLA Bahnhof
Hofgarten Groitzsch
Privater Pflegedienst Leipziger Land
Friedrich-Ebert-Straße 32b
04539 Groitzsch
groitzsch@seniorenpflege.info
Kontakt zur Wohnungsverfügbarkeit:
Frau Claudia Schleinitz
034296 – 42368
034296 – 42369








